 | |
 |
|
You can benefit from 36 years of worldwide experience in the
fresh produce industry.
An experience that covers all aspects of design,
implementation and importantly operation of Packhouse and pre pack operations,
rapid pre cooling and long term storage.
Whether it is a brand new project or an extension to an existing operation you can have an economical, practical and technically correct solution.

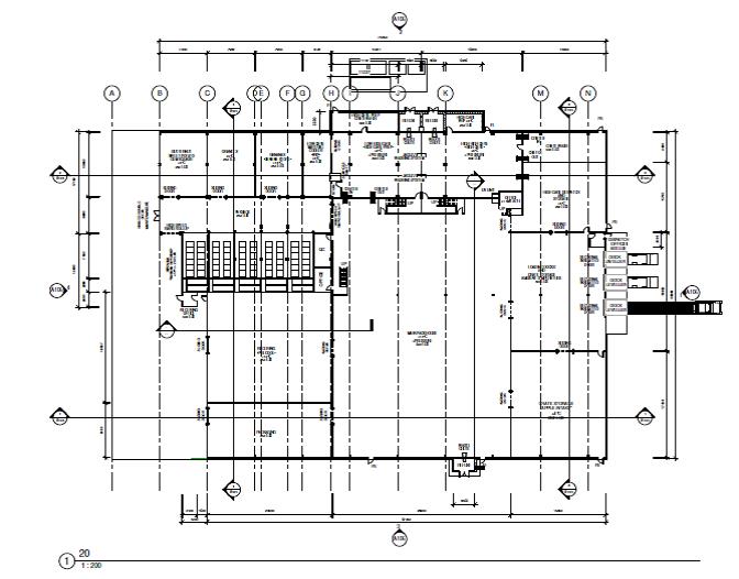
The layout shownabove is for a recently built 5300m² fresh
and processed produce manufacturing and distribution centre at Dube Tradeport
next to the new King Shaka Airport in Durban.
 |